安考100分
助客兴科技
首页
在线练题
快速搜题
机构入驻
首页
试题详情
网友您好,请在
下方输入框内
输入要搜索的题目:
查询
题目内容
(试题来至安考100分)
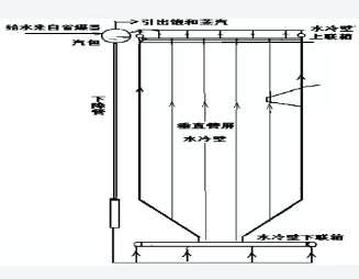
【单选题】
水冷壁的传热方式主要是()。
A、导热
B、对流
C、辐射
D、电磁波
参考答案:
C
你可能需要的试题
1.
【单选题】
连续排污管口一般装在汽包正常水位下()处,以连续排出高浓度的锅水,从而改善锅水品质。
A、50~100mm
B、100~150mm
C、200~300mm
D、400~500mm
点击查看答案
2.
【单选题】
在动力燃烧控制区,燃烧速度主要取决于()。
A、物理条件
B、外界条件
C、化学条件
D、锅炉效率
点击查看答案
3.
【单选题】
高压锅炉的控制安全阀和工作安全阀的整定值为()倍额定压力。
A、1.05/1.08
B、1.02/1.05
C、1.10/1.10
D、1.25/1.5
点击查看答案
4.
【单选题】
在下面锅炉结构图中C是()。
A、水平烟道
B、空气预热器
C、过热器
D、冷灰斗
E、遮焰角
点击查看答案
5.
【单选题】
下面锅炉示意图中,()是强制循环汽包炉。
A、
B、
C、
点击查看答案
用
安考100分
拍照搜题更方便
拍照搜题
拉新好礼
顺序练题
模拟考试
试题属性
试题分类:
G锅炉作业->G2电站锅炉司炉(点击去练题)
试题总数:
1756(道)
考试信息:
满分:100分 及格:100分 时长:90分钟
更新日期:
2025-12-03 16:03:22
题库推文
免费领取安考100分30日题库VIP
题库合作,欢迎机构入驻
推荐一款安全考试题库软件
2023年焊工考试技巧
成都开发考试题库微信小程序多少钱?
开发一个安全考试题库小程序需要些什么?
拍照搜题找答案推荐这款软件
2023年湖南省安全考试题库-国家题库
2023年低压电工考试题库-国家题库