安考100分
助客兴科技
首页
在线练题
快速搜题
机构入驻
首页
试题详情
网友您好,请在
下方输入框内
输入要搜索的题目:
查询
题目内容
(试题来至安考100分)
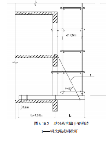
【单选题】
关于图示主要安全隐患描述的是( )。
A、悬挑工字钢缺少反拉钢丝绳
B、安全网未设置
C、立杆底部悬空
D、工字钢设置间距过大
参考答案:
A
你可能需要的试题
1.
【单选题】
关于图示脚手架在施工电梯断开处,主要存在的问题是( )。
A、架体水平防护缺失
B、架体上垃圾未清理
C、架体开口处未设置横向斜撑
D、架体阴阳角井字架缺失立杆
点击查看答案
2.
【单选题】
如图所示,找出存在的安全隐患( )。
A、锚固环缺失一道
B、锚固环螺帽设置不足
C、工字钢锚固长度不足
D、锚固环螺帽出丝不足
点击查看答案
3.
【单选题】
主体施工中,某工地5号楼作业层,如图存在的安全隐患有( )。
A、架体立杆搭设高度不足
B、模板存在破损
C、作业面垃圾未清理
D、立杆相邻接头未错开
点击查看答案
4.
【单选题】
图中,根据建筑施工扣件式钢管脚手架安全技术规范内第6.10.2条规定,锚固型钢悬挑梁的 U 型钢筋拉环或锚固螺栓直径不宜小于( )㎜
A、14
B、18
C、16
D、20
点击查看答案
5.
【单选题】
如图所示,一次悬挑脚手架高度不宜超过()m。
A、18
B、19
C、20
D、22
点击查看答案
用
安考100分
拍照搜题更方便
拍照搜题
拉新好礼
顺序练题
模拟考试
试题属性
试题分类:
建筑工程三类人员【湖北】->C3证专职安全员(综合类)(点击去练题)
试题总数:
6772(道)
考试信息:
满分:100分 及格:100分 时长:90分钟
更新日期:
2025-11-22 15:09:39
题库推文
免费领取安考100分30日题库VIP
题库合作,欢迎机构入驻
推荐一款安全考试题库软件
2023年焊工考试技巧
成都开发考试题库微信小程序多少钱?
开发一个安全考试题库小程序需要些什么?
拍照搜题找答案推荐这款软件
2023年湖南省安全考试题库-国家题库
2023年低压电工考试题库-国家题库